Oostervoort 7

7103XK WINTERSWIJK

Verkocht

Soort woning Woonhuis

Bouwjaar 1914

Oppervlakte wonen 99 m²

Aantal slaapkamers 3

Kenmerken

Overdracht

Aangeboden sinds
30 september 2025
Status
Verkocht
Aanvaarding
In overleg

Bouw

Soort woning
Woonhuis
Bouwjaar
1914
Soort dak
Zadeldak

Oppervlakten en inhoud

Oppervlakte wonen
99 m²
Oppervlakte overige inpandige ruimte
12 m²
Perceel
125 m²
Inhoud
444 m³

Indeling

Aantal kamers
4
Aantal slaapkamers
3
Aantal badkamers
1
Badkamervoorzieningen
Toilet, douche en wastafelmeubel
Aantal woonlagen
3 woonlagen
Voorzieningen
Rolluiken en glasvezel kabel

Energie

Energielabel
D
Isolatie
Dakisolatie, muurisolatie en grotendeels dubbelglas
Verwarming
Cv-ketel
Warm water
Cv-ketel en elektrische boiler eigendom
Cv-ketel
Intergas (combiketel uit 2010)

Buitenruimte

Ligging
Aan rustige weg en in woonwijk
Tuin
Achtertuin
Achtertuin
24 m² gelegen op het westen met achterom

Bergruimte

Schuur/berging
Aangebouwd steen
Voorzieningen
Voorzien van elektra

Garage

Soort garage
Geen garage

Omschrijving

Welkom aan de Oostervoort 7 te Winterswijk!

Een sfeervolle VRIJSTAANDE WONING gelegen op de hoek van de Oostervoort en de Bloemstraat.

Deze woning ligt aan de rand van het centrum, in een rustige straat. Zowel de Oostervoort als de Bloemstraat zijn ingericht als 30 km zone en de Bloemstraat is een eenrichtingsstraat met een rijrichting vanuit de Waliënsestraat.

De woning beschikt over een zonnige tuin/terras op het westen welke is afgesloten middels een keurige houten schutting met poort.

De aangebouwde stenen berging biedt o.a. ruimte voor fietsen en is zowel van de buitenzijde als inpandig bereikbaar.

In 2014 heeft een grote renovatie plaatsgevonden. De huidige eigenaren hebben sindsdien o.a. de buitenruimte keurig aangelegd met een grote terrastegels en de containers netjes weggewerkt achter een ombouw. In 2024 zijn het buitenschilderwerk, de HR++-ramen in de woonkamer en de elektrische rolluiken door het hele huis volledig vernieuwd.


De indeling van de woning is als volgt:

Begane grond: De entree/hal is voorzien van een fraaie tegelvloer en biedt toegang tot de L-vormige woonkamer en trapopgang naar de eerste verdieping. De sfeervolle woonkamer met zit- en eethoek is licht en ruim. De radiatoren zijn deels weggewerkt achter de bij de sfeer passende ombouwen. In de woonkamer, onder de trapopgang, direct naast de toegang tot de keuken, bevindt zich een provisiekast. De keuken is gerenoveerd en beschikt over diverse inbouwapparatuur waaronder een recentelijk vernieuwde gaskookplaat en koelkast. In de aanbouw, welke via de keuken toegankelijk is, bevinden zich een bijkeuken met achteruitgang en toiletruimte met wandcloset en fonteintje. De wasmachine en -droger staan opgesteld in een hiervoor bestemde nis in de bijkeuken. De berging in de aanbouw is zowel van buiten als inpandig via de bijkeuken bereikbaar.

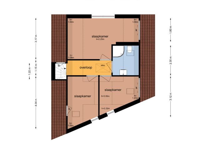
Eerste verdieping: Overloop met toegang tot 3 slaapkamers en een badkamer. Alle vertrekken op deze verdieping beschikken over paneeldeuren. De badkamer is voorzien van modern sanitair waaronder een douchecabine, wandcloset en wastafelmeubel met waskom.

Tweede verdieping: Via een vlizotrap op de overloop is de zolder/berging bereikbaar.


Nadere informatie:
- Oorspronkelijk bouwjaar 1914
- Perceeloppervlakte 125 m²
- Woonoppervlakte ± 99 m²
- Overige inpandige ruimte ± 12 m²
- Bruto inhoud woning ± 444 m³
- Voorzien van dubbel glas, dak- en muurisolatie
- Rondom rolluiken
- Energielabel D


Een woning met karakteristieke kenmerken in een moderne en sfeervolle stijl!

Kijk voor alle beschikbare info op de woningwebsite: OOSTERVOORT7.NL

Voel je thuis!

Media

Locatie

Kom langs!

We helpen u graag verder

Wij staan voor een persoonlijke benadering, duidelijke communicatie en een dienstverlening die aansluit bij úw wensen.

Maak een afspraak 0543-531880