Misterweg 63b

7102BE WINTERSWIJK

Onder bod

€ 285.000,- k.k.

Soort woning Appartement

Bouwjaar 2007

Oppervlakte wonen 110 m²

Aantal slaapkamers 3

Kenmerken

Overdracht

Vraagprijs
€ 285.000 k.k.
Vraagprijs per m²
€ 2.591
Aangeboden sinds
31 oktober 2025
Status
Onder bod
Aanvaarding
In overleg
Bijdrage VvE
€ 125,00 per maand

Bouw

Soort woning
Appartement
Soort appartement
Maisonnette
Bouwjaar
2007
Soort dak
Samengesteld dak

Oppervlakten en inhoud

Oppervlakte wonen
110 m²
Oppervlakte externe bergruimte
8 m²
Inhoud
406 m³

Indeling

Aantal kamers
4
Aantal slaapkamers
3
Aantal badkamers
1
Badkamervoorzieningen
Toilet, wastafel en inloopdouche
Aantal woonlagen
2 woonlagen
Gelegen op
1e woonlaag
Voorzieningen
Mechanische ventilatie, airconditioning, dakraam, glasvezel kabel en natuurlijke ventilatie

Energie

Energielabel
A
Isolatie
Dakisolatie, muurisolatie, vloerisolatie en grotendeels dubbelglas
Verwarming
Cv-ketel
Warm water
Cv-ketel
Cv-ketel
Nefit (combiketel uit 2007)

Buitenruimte

Ligging
In centrum en in woonwijk
Tuin
Geen tuin

Bergruimte

Schuur/berging
Aangebouwd steen
Voorzieningen
Voorzien van elektra

Garage

Soort garage
Parkeerplaats

Vereniging van Eigenaren

Inschrijving KvK
Ja
Jaarlijkse vergadering
Ja
Periodieke bijdrage
Reservefonds aanwezig
Ja
Onderhoudsplan
Ja
Opstalverzekering
Ja

Omschrijving

Een 4-kamer APPARTEMENT (type maisonnette) op de begane grond en eerste verdieping, eigen parkeerplaats en berging, energielabel A, en gelegen aan de rand van het centrum!

Dit moderne en keurig afgewerkte appartement is eigentijds ingericht en beschikt behalve over 3 slaapkamers ook over airconditioning en een moderne inbouwkeuken met diverse apparatuur.

Het appartementencomplex is gebouwd in 2007 en bestaat uit vier appartementen. Dit appartement heeft een eigen voordeur op de begane grond en is (net als veel woningen) verdeeld over twee woonlagen. Bij het appartement hoort een eigen parkeerplaats en buitenberging. De VvE verzorgt het onderhoud van dak, gevels en buitenterrein, waardoor het complex in goede staat blijft en er weinig eigen onderhoud vereist is. Dit zorgt voor een netjes onderhouden en onderhoudsarme woonomgeving.

De Misterweg is gelegen op loopafstand van het levendige centrum van Winterswijk, met in de directe omgeving diverse supermarkten, het Gerrit Komrij College en openbaar vervoer via trein- en busstation.


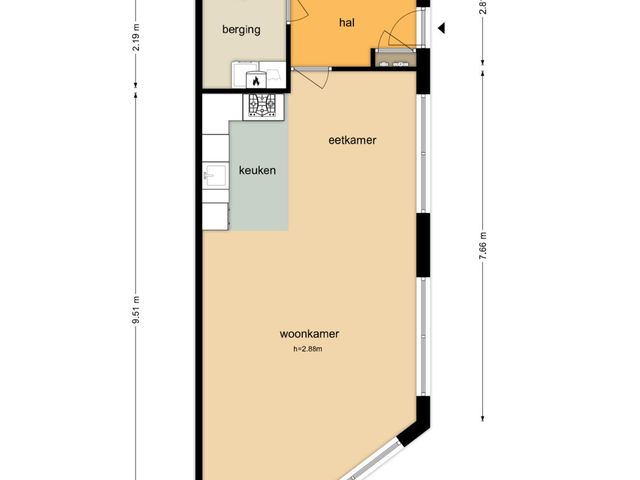
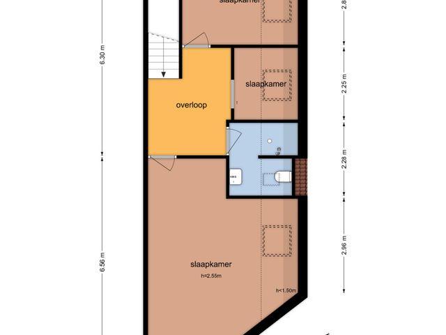
De indeling van deze maisonnette is als volgt:

Begane grond: Entree via de voordeur in de hal. De hal is voorzien van een trapopgang naar de eerste verdieping, een toiletruimte met wandcloset en fonteintje, en de meterkast. Vanuit de hal is er toegang tot de (inpandige) berging met cv-opstelling en wasmachine-aansluiting. De hal biedt tevens toegang tot de woonkamer. Dankzij de ligging op de hoek van de straat geniet de woonkamer van veel natuurlijke lichtinval. De ruimte is afgewerkt met een nette parketvloer en biedt voldoende plaats voor een ruime eethoek. De moderne open keuken is voorzien van diverse inbouwapparatuur, waaronder een inductiekookplaat, vaatwasser en koelkast.

Eerste verdieping: Overloop met toegang tot drie slaapkamers en de badkamer. Alle slaapkamers zijn voorzien van een dakraam, waarbij één slaapkamer beschikt over airconditioning (2024). De badkamer is voorzien van een inloopdouche, tweede toilet, designradiator en wastafel.


Kenmerken:
- Bouwjaar 2007
- Woonoppervlakte ± 110 m²
- Externe bergruimte ± 8 m²
- 3 slaapkamers
- Voorzien van airconditioning
- Instapklare woning
- Energielabel A
- Eigen parkeerplaats en berging
- 1/4 aandeel in het appartementsgebouw
- Servicekosten € 125,- per maand

Een keurig appartement aan de rand van het centrum.

Voel je thuis!

Waarborgsom/bankgarantie
Tot zekerheid van de nakoming van de verplichtingen zoals gesteld in de koopovereenkomst dient de kopende partij een bankgarantie (10% van de koopsom) te stellen bij een Nederlandse bankinstelling c.q. een waarborgsom (10% van de koopsom) te storten bij de notaris.

Media

Locatie

Kom langs!

We helpen u graag verder

Wij staan voor een persoonlijke benadering, duidelijke communicatie en een dienstverlening die aansluit bij úw wensen.

Maak een afspraak 0543-531880