Burgemeester van Nispenstraat 17

7103WH WINTERSWIJK

Verkocht

Soort woning Woonhuis

Bouwjaar 1936

Oppervlakte wonen 85 m²

Aantal slaapkamers 3

Kenmerken

Overdracht

Aangeboden sinds
30 september 2025
Status
Verkocht
Aanvaarding
Per datum

Bouw

Soort woning
Woonhuis
Bouwjaar
1936
Soort dak
Zadeldak

Oppervlakten en inhoud

Oppervlakte wonen
85 m²
Oppervlakte overige inpandige ruimte
7 m²
Oppervlakte gebouwgebonden buitenruimte
6 m²
Oppervlakte externe bergruimte
28 m²
Perceel
297 m²
Inhoud
361 m³

Indeling

Aantal kamers
4
Aantal slaapkamers
3
Aantal woonlagen
4 woonlagen
Voorzieningen
Tv-kabel, dakraam en natuurlijke ventilatie

Energie

Energielabel
G
Isolatie
Gedeeltelijk dubbel glas
Verwarming
Cv-ketel
Warm water
Cv-ketel
Cv-ketel
Nefit (combiketel uit 2004)

Buitenruimte

Ligging
Aan rustige weg en in woonwijk
Tuin
Achtertuin en voortuin
Achtertuin
120 m² gelegen op het zuiden met achterom

Garage

Soort garage
Vrijstaand hout
Capaciteit
2
Voorzieningen
Elektra

Omschrijving

Welkom aan de Burgemeester van Nispenstraat 17 in Winterswijk!

Het betreft een HELFT VAN DUBBEL WOONHUIS met vrijstaande houten garage/berging en tuin op het zuiden.

De woning is gelegen in een fijne woonomgeving, aan een mooie straat met veel groen. Scholen, speeltuin en supermarkt liggen op loopafstand, evenals het centrum van het dorp.

In de woning zijn nog veel originele details aanwezig zoals glas-in-lood ramen en paneeldeuren en de bel. De voortuin is onderhoudsvrij aangelegd met borders en de oprit biedt ruimte voor minimaal 2 auto's. De achtertuin is gelegen op het zonnige zuiden. De grote houten garage/berging heeft een afmeting van circa 9 x 3 m en heeft openslaande deuren aan de voorzijde alsmede een deur aan de zijkant.

De indeling van de woning is als volgt:
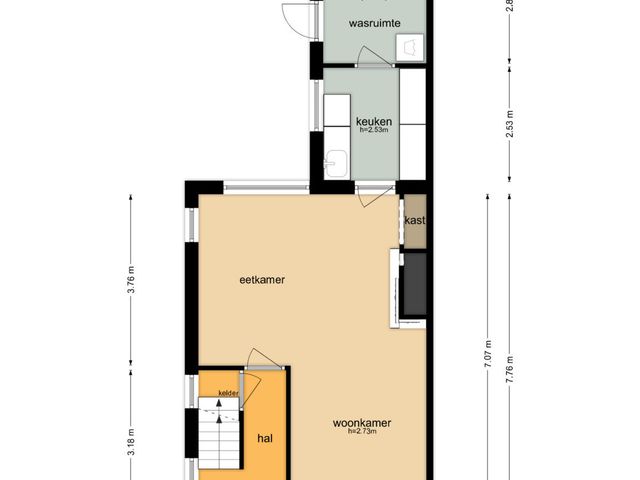
Begane grond: Entree/hal met trapopgang. De provisiekelder is bereikbaar middels een deur onder de trap. Vanuit de hal is er toegang tot de L-vormige woonkamer met zit- een eethoek, deze ruimte beschikt over een schouw met gasthaard. Keuken voorzien van keukenapparatuur met een doorloop naar de wasruimte met achteringang. Toiletruimte en doucheruimte voorzien van een wastafel.
Eerste verdieping: Vanaf de overloop, die is uitgerust met een inbouwkast, is er toegang tot drie slaapkamers. Eén van de slaapkamers beschikt over een inbouwkast, terwijl een andere slaapkamer toegang biedt tot het balkon, dat uitzicht heeft op de zuidenlijkgelegen achtertuin.
Tweede verdieping: Vliering te bereiken via vlizotrap


Kenmerken:
- Bouwjaar 1936
- Woonoppervlakte ± 85m²
- Overige inpandige ruimte ± 7m²
- Gebouwgebonden buitenruimte ± 6m²
- Externe bergruimte ± 28m²
- Perceeloppervlakte ± 468m²
- Behouden van originele details
- Diepe tuin op het zuiden met vrijstaande garage
- Balkon op het zuiden
- Gelegen aan groene/sfeervolle straat
- Energielabel G

Voel je thuis in de Burgemeester van Nispenstraat 17 in Winterswijk.

Kijk voor alle informatie over deze woning op de woningwebsite: BURGVANNISPENSTRAAT17.NL

Media

Locatie

Kom langs!

We helpen u graag verder

Wij staan voor een persoonlijke benadering, duidelijke communicatie en een dienstverlening die aansluit bij úw wensen.

Maak een afspraak 0543-531880